Vacant Land for development Extention 34

Ref # 2256301
N$1,490,000
Property Details
2,153m²

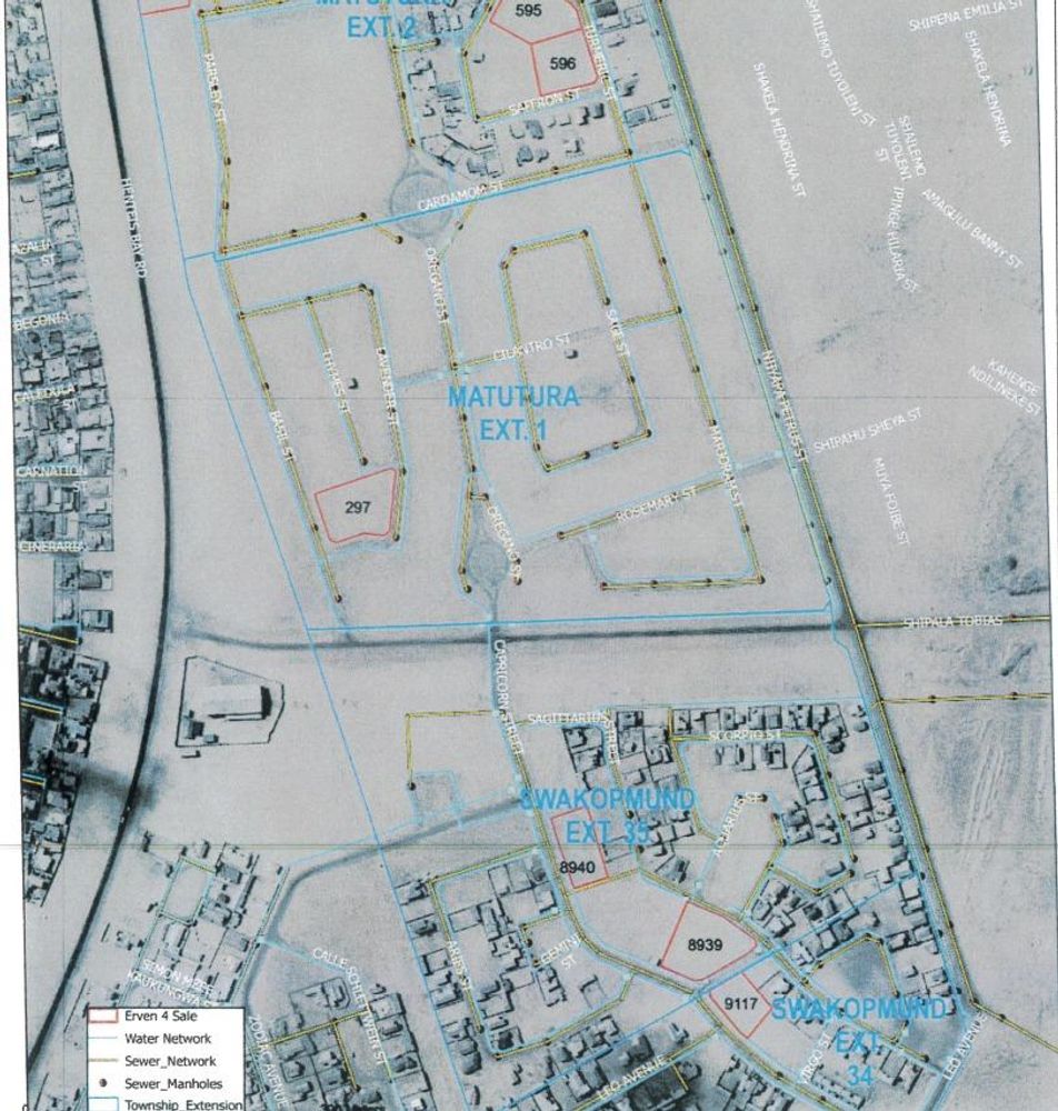
Vacant Land for Development in Extension 34, Swakopmund

Situated in a prime residential area near the new University campus and newly established schools, this vacant land offers a lucrative opportunity for development. With General Residential Zoning of 1/100 and approved plans for 13 units by the Municipality of Swakopmund, this property is ready for your next project.

Benefiting from essential services including water, electricity, paved roads, refuse removal, and sewerage, this land provides a solid foundation for your development plans. Located just off the main road to Henties Bay in extension 34, this well-developed area boasts a thriving community with numerous completed and occupied houses.

The property's level terrain eliminates the need for extensive groundwork, making it a developer's dream. Don't miss out on this exceptional opportunity to bring your vision to life in a sought-after location. Contact us today to learn more and take the next step in realizing the potential of this property.

Property Features
Property Type
Vacant Land Residential
Land Size
2,153m²
Share this Property
Make an enquiry
Interested in this property? Please fill in your details below, and we will contact you as soon as possible.
By clicking on "submit" you agree to our privacy policy.